Porzione di bifamiliare in vendita

Credera Rubbiano, Via Isola Fulcheria - Rovereto
€ 182.000
4 locali 4 locali
135 Mq 135 Mq
2 bagni 2 bagni

Porzione di bifamiliare in vendita

Credera Rubbiano, Via Isola Fulcheria - Rovereto

Descrizione annuncio

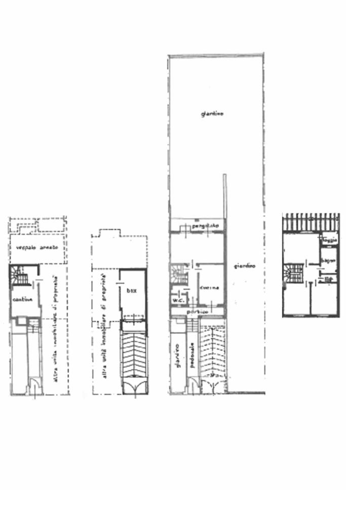
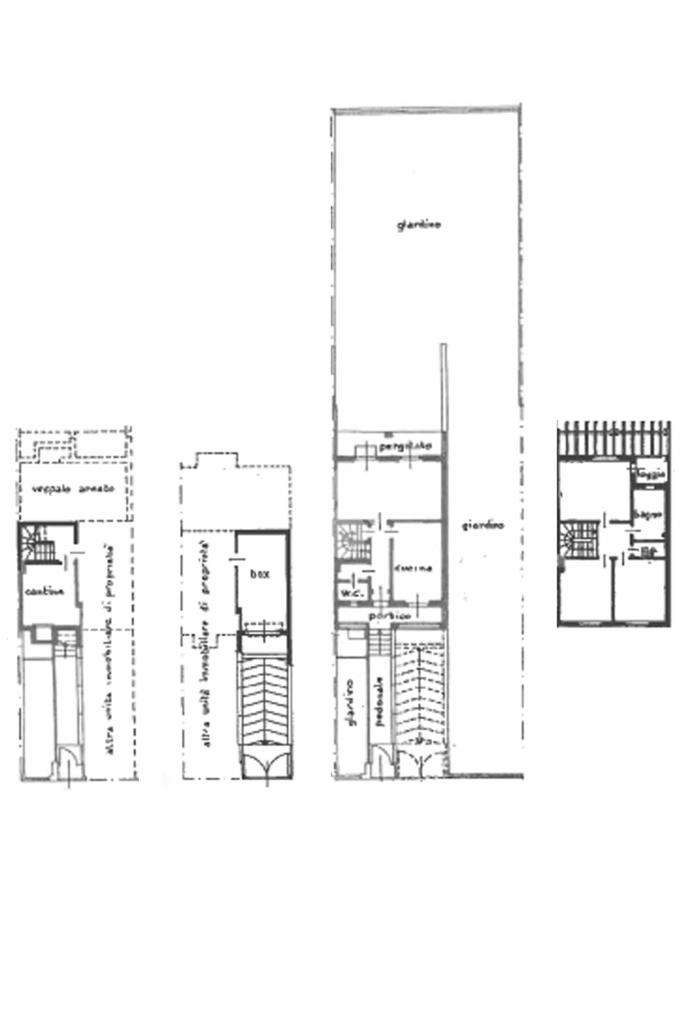
In frazione di Rovereto. In bella zona residenziale di ville e con vista nel verde, proponiamo abitazione libera su tre lati con portici e giardino privato di circa 330 mq. L'abitazione di comode metrature si sviluppa al piano terra da ingresso, cucina abitabile, soggiorno con accesso diretto al giardino retrostante e bagno di servizio. Al primo piano nella zona notte, tutta rifinita con parquet, troviamo le tre camere da letto di cui una con loggia, ripostiglio ed il bagno padronale con la vasca. Al piano interrato, completano l'abitazione il box e la cantina di 23 mq.

Credera-Rubbiano (Credéra Rübià in dialetto Cremasco) è un comune italiano di 1531 abitanti della provincia di Cremona in Lombardia. Lo stemma e il gonfalone sono stati concessi con decreto del presidente della Repubblica dell'8 giugno 1956. «D'azzurro, alla croce latina scorciata d'oro. Ornamenti esteriori da Il gonfalone è un drappo di colore giallo, con la bordatura ondata d'azzurro, ornato di ricami d'argento e caricato dallo stemma comunale. Il territorio comunale comprende, oltre ai capoluoghi Credera e Rubbiano, le frazioni di Cascine San Carlo e Rovereto.

Mostra tutto

Nelle vicinanze

Trasporto pubblico Trasporto pubblico
Trasporto pubblico
950 m
Scuole Scuole
Scuole
450 m
Scuola elementare A. Caprotti
1,6 Km
Farmacia Farmacia
Dott. Invernizzi Giuseppe
920 m
Farmacia
1,6 Km
Supermercati Supermercati
Alimentari Giulia Manenti
1,4 Km
Negozi Negozi
Negozi
930 m
Ristoranti Ristoranti
La Pergola
330 m
Ristorante Il Fondaco dei Mercanti
700 m
Cantoni
2,0 Km
Il Postiglione
2,3 Km
Ristoranti
2,6 Km
Mostra tutto

Caratteristiche

Rif.:
61113916
Piano:
Su più livelli di 3
Totale piani:
3
Box:
1
Balconi:
1
Camere da letto:
3
Mostra tutto
Prezzo Prezzo
€ 182.000
Rata mutuo Rata mutuo
€ 850 / mese
Spese annue Spese annue
€ 0
Proponi il tuo prezzoProponi il tuo prezzo
Immobile valutato con T·Valuta

Classe Energetica

G
G
G
G
G
G
G
G
G
EP invernale del fabbricato:
EP estiva del fabbricato:
Anno di costruzione:
1984
Riscaldamento:
Autonomo
Tipo impianto:
A radiatori
Tipo alimentazione:
Metano

Ti interessa visionare l'immobile?

Fissa un appuntamento  Fissa un appuntamento

Richiedi informazioni

Clicca su Leggi per aprire l'informativa
* Questi campi sono obbligatori

Calcola il tuo mutuo

Semplice e senza impegno
Anticipo

( % )
Mutuo

( % )

pochi semplici passi

inserisci i tuoi dati
Questionario completato
Grazie per aver richiesto un appuntamento senza impegno con un nostro Consulente del Credito e Assicurativo.

Hai inserito correttamente tutti i dati necessari e a breve riceverai una e-mail con un link da convalidare per inviare i tuoi dati.
Affiliato
Studio Bagnolo Sas
Via IV Novembre, 12 26010 Bagnolo Cremasco (CR)

Il nostro staff


  • Chiara Festari
    Coordinatrice

  • Giuseppe Cavalli
    Affiliato

  • Fabio Donzelli
    Collaboratore

  • Melanie Alejandra Chipe Menendez
    Coordinatrice

  • Riccardo Calatrò
    Collaboratore

  • Robin Singh
    Collaboratore
Via IV Novembre, 12 26010 Bagnolo Cremasco (CR)
Zona: Bagnolo C. - Vaiano C. - Monte C. - Chieve - Crespiatica
Mostra su mappa
Orari: Dal Lunedì al Venerdì:9:00-12:30/14:30-20:00 Sabato continuato fino alle ore 16:00
Affiliato
Studio Bagnolo Sas
Via IV Novembre, 12 26010 Bagnolo Cremasco (CR)

2026 Tecnocasa Franchising S.p.A. - P. IVA 08365160152 - Via Monte Bianco 60/A 20089 Rozzano (MI). Ogni agenzia ha un proprio titolare ed è autonoma. Privacy policy | Policy utilizzo | Cookie policy