Villa a schiera in vendita

Monte Cremasco, Via Alessandro Volta
€ 188.000
3 locali 3 locali
107 Mq 107 Mq
2 bagni 2 bagni

Villa a schiera in vendita

Monte Cremasco, Via Alessandro Volta

Descrizione annuncio

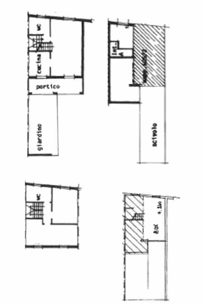
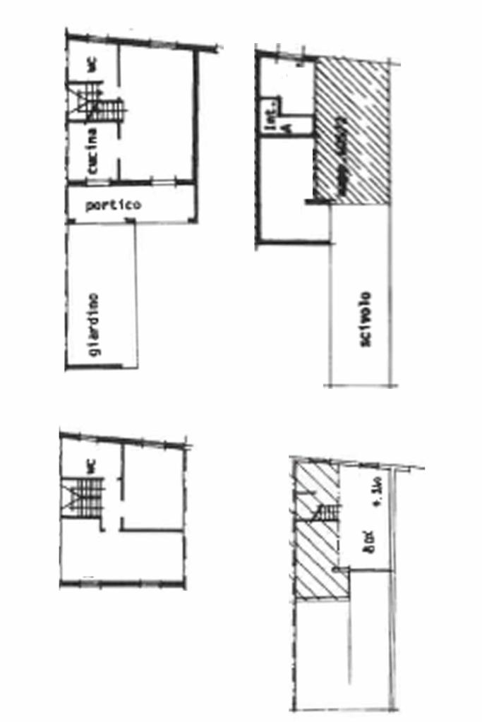
Villa a schiera libera sue tre lati con giardino sul fronte dell'abitazione e portico d'ingresso. L'immobile è composto al piano terra da soggiorno, cucina abitabile e bagno con la doccia. Al primo piano troviamo il bagno padronale con la vasca e le due camere da letto, possibilità di creare la terza camera. Al piano seminterrato il box comodo e la cantina di 33 mq. La soluzione è completa di zanzariere e la predisposizione all'aria condizionata.

Il comune è molto ben strutturato e si possono trovare diversi servizi. Per quanto riguarda l’istruzione a Monte Cremasco troviamo l’asilo nido comunale, la scuola materna e la scuola elementare. Per quanto concerne le scuole medie inferiori, esiste il servizio gratuito di navetta comunale da Monte Cremasco per Vaiano Cremasco. Dall’agosto 2013 è stato inaugurato il nuovo Comune che è possibile raggiungere al civico n°12 di via Roma. All’interno della nuova struttura del comune troviamo anche la biblioteca pubblica. Recentemente è stato aperto il nuovo tratto della . Paullese, che garantisce risparmio in ordine di tempo, sia per il raggiungimento della città di Milano, sia per quella di Crema. E' inoltre presente un comodo servizio autobus per MM3 SAN DONATO che prosegue per Milano città; all’interno del paese ci sono tre fermate (una molto comoda per l’immobile in questione) con partenze già dalle prime ore della mattina. Anche il rientro è molto ben servito. Ovviamente esistono fermate intermedie anche per i paesi che si trovano tra Monte e Milano. Comodissimo il collegamento con Crema che dista a soli 5min di auto. Altrettanto comodi e ben serviti sono i collegamenti per CREMA e per LODI con il passante che porta direttamente in Milano centro in 30 garantendo ai pendolari un'ottima alternativa alla macchina.

Mostra tutto

Nelle vicinanze

Trasporto pubblico Trasporto pubblico
Trasporto pubblico
1,9 Km
Ricariche auto elettriche Ricariche auto elettriche
Dovera Gargioni | BECHARGE
2,6 Km
Scuole Scuole
Scuole
2,0 Km
Scuola elementare Maria Moretti
2,2 Km
Scuola elementare Ottaviano Marazzi
2,4 Km
Scuola Giovanni Pascoli
2,5 Km
Scuola Elementare e Media Statale G. Marconi
2,6 Km
Farmacia Farmacia
Farmacia
30 m
Farmacia
2,2 Km
Supermercati Supermercati
Supermercati
2,0 Km
Il Becco d'Oca
2,7 Km
Negozi Negozi
La Piazzetta
2,1 Km
Rosi & Ari
2,1 Km
La Bottega del Gusto
2,7 Km
Bar Bar
Bar Centrale
180 m
Magika
2,9 Km
Ristoranti Ristoranti
Pizza al Trancio
20 m
L'Esodo
790 m
Leon Rampante
1,6 Km
Pizzeria Kebab Postino
2,0 Km
Il Torchio
2,1 Km
Mostra tutto

Caratteristiche

Rif.:
61115870
Piano:
Su più livelli di 3
Totale piani:
3
Box:
1
Camere da letto:
2
Arredamento:
Assente
Mostra tutto
Prezzo Prezzo
€ 188.000
Rata mutuo Rata mutuo
€ 878 / mese
Spese annue Spese annue
€ 350
Proponi il tuo prezzoProponi il tuo prezzo

Classe Energetica

G
G
G
G
G
G
G
G
G
EP invernale del fabbricato:
EP estiva del fabbricato:
Anno di costruzione:
1995
Riscaldamento:
Autonomo
Tipo impianto:
A radiatori
Tipo alimentazione:
Metano

Ti interessa visionare l'immobile?

Fissa un appuntamento  Fissa un appuntamento

Richiedi informazioni

Clicca su Leggi per aprire l'informativa
* Questi campi sono obbligatori

Calcola il tuo mutuo

Semplice e senza impegno
Anticipo

( % )
Mutuo

( % )

pochi semplici passi

inserisci i tuoi dati
Questionario completato
Grazie per aver richiesto un appuntamento senza impegno con un nostro Consulente del Credito e Assicurativo.

Hai inserito correttamente tutti i dati necessari e a breve riceverai una e-mail con un link da convalidare per inviare i tuoi dati.
Affiliato
Studio Bagnolo Sas
Via IV Novembre, 12 26010 Bagnolo Cremasco (CR)

Il nostro staff


  • Chiara Festari
    Coordinatrice

  • Giuseppe Cavalli
    Affiliato

  • Fabio Donzelli
    Collaboratore

  • Melanie Alejandra Chipe Menendez
    Coordinatrice

  • Riccardo Calatrò
    Collaboratore

  • Robin Singh
    Collaboratore
Via IV Novembre, 12 26010 Bagnolo Cremasco (CR)
Zona: Bagnolo C. - Vaiano C. - Monte C. - Chieve - Crespiatica
Mostra su mappa
Orari: Dal Lunedì al Venerdì:9:00-12:30/14:30-20:00 Sabato continuato fino alle ore 16:00
Affiliato
Studio Bagnolo Sas
Via IV Novembre, 12 26010 Bagnolo Cremasco (CR)

2026 Tecnocasa Franchising S.p.A. - P. IVA 08365160152 - Via Monte Bianco 60/A 20089 Rozzano (MI). Ogni agenzia ha un proprio titolare ed è autonoma. Privacy policy | Policy utilizzo | Cookie policy